Pantechnic Ltd., with long-standing experience in Industrial and ATEX-compliant ventilation, provides specialized solutions tailored to each application’s unique requirements. Our expertise allows us to design and deliver ventilation systems that ensure both operational safety and environmental protection.
A critical part of many industrial processes—such as sludge drying and dewatering—is the ventilation of the installation area. Our design philosophy considers all relevant parameters for ATEX-certified environments, including the safe handling and neutralization of potentially explosive gases and odors that may be generated during operation.
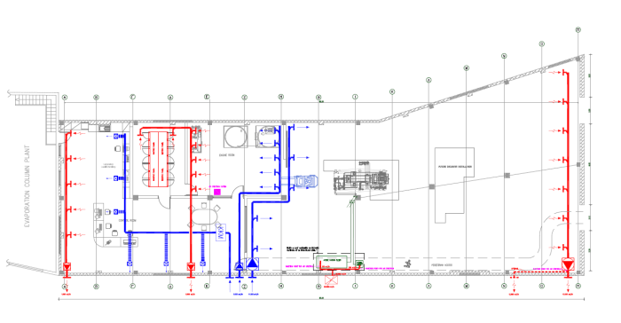
The ventilation system is typically divided into two subsystems:
In both zones, the system includes fresh air supply fans and exhaust fans. Exhaust fans are sized for a slightly higher capacity, creating a negative pressure environment that prevents odors and gases from escaping into adjacent spaces.
Before exhaust air is released to the environment, it passes through a dedicated treatment stage, where chemical scrubbing or neutralization removes contaminants and odors.
The placement of ducts and air distribution outlets within the buildings is carefully engineered to achieve optimal sweeping of the installation space, ensuring uniform air renewal and maximum efficiency.
With this approach, Pantechnic delivers robust and reliable customized ventilation systems, safeguarding worker safety, protecting the environment, and supporting uninterrupted plant operation.
